Ingatlankatalógus
Ingatlan kategóriák:
Részletes leírás / Ingatlan adatlap / Fotók az ingatlanról
Ingatlan: Pécel Páskomliget lakóparkban kínálunk magas műszaki tartalommal épülő ikerház | vissza a kategóriába
Ingatlanra érdeklődni
Ingatlanreferens:
Lőrincz Ingatlan
Telefon:
0670-512-5730
Érdekli az ingatlan? Megtekintéshez - Érdeklődéshez kattintson ide
Ingatlan leírása:
PÉCEL PANORÁMÁS RÉSZÉN KÍNÁLUNK MAGAS MINŐSÉGI TARTALOMMAL ÉPÜLŐ KÉT IKERHÁZ FELELT SZERKEZTKÉSZ ILLETVE KULCSRAKÉSZ ÁRON!
A BERUHÁZÓ A VÉTELÁRBA BESZÁMÍT ÉPÍTÉSI TELKET, KISEBB BONTANDÓ CSALÁDI HÁZAT, LAKÁST ÉRTÉKEGYEZTETÉSSEL.
Mindkét ikerfél statikailag önálló egységként, külön teherhordó falakkal, külön tetőszerkezettel épül.
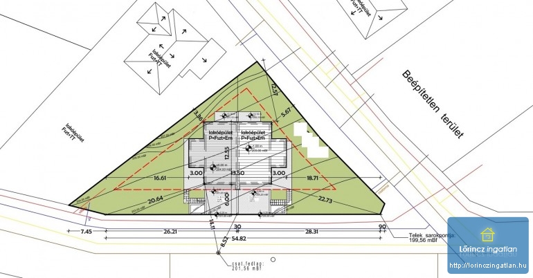
Mindkét ikerfél bruttó 306 nm, nettó 217 nm három szinten, nappali+4 szobás, a telekterület 1007 nm, mely fele arányban oszlik meg a két ingatlan között.
A pinceszinten 44,37 nm-es duplaállásos garázson kívül még egy tároló és kazánház kapott helyett, a garázs előtti beálló viakolorozott.
A következő szinten 48 nm-es amerikai konyhás nappali teraszkapcsolattal, kamra, gardrób és mosdó került kialakításra. Az emeleti részen, mely teljes szintes 4 szoba, közlekedő, fürdőszoba és a mosdó található.
A szerkezetkész ár tartalmazza:
-Támfal (vízzáró) zsalukőből 25-ös (duplán-fedve vízszigetelve+ vasalva)
-Mellé pincefalazó főfal Porotherm 38 as okos (klíma)tégla, tehát a pince falazat 63 cm
- Pincétől fölfelé 30 As Xtherm klímatégla
- Béléstest födém, terasznál monolit (kiváló hang-hőszigetelés) oldalt XPS szigeteléssel.
- Nyílászárók 3 üveg rétegelt Kömmerling kívül Antracit erezetű belül fehér + Bejárati ajtók.
- Automata szekcionált garázskapuk
- Tető + korcolt lemez fedéssel (antracit)
- Szinterezett "Trifa" bádog csapadékvíz elvezetéssel (szikkasztó kulé kavicsgödörbe)
- Közművek: villany, víz- csatorna engedélyeztetve (házig történő beállással)
- az ingatlan körbekerített
Szerkezetkész ár: Bruttó 118 M Ft
Átadás: 2023.I.negyedév
A kulcsrakész ár tartalmazza:
- Külső 15 cm GRAFITOS szigetelés+ fehér színezés
- Lábazati szigetelés 10 cm XPS
- Vakolat+ 3 rétegű festés (fehér)
- Hőszivattyúval (fűtés-melegvíz)+ opcióként ha a vevő úgy kívánja a mennyezeti hűtés is megoldható a klíma helyett
- Víz- villany szerelvényezés, fürdőszoba bútorral!
- Hideg és melegburkolatok 6000/m2
- Ablak párkányokkal, terasz greslappal burkolva
- Gépkocsi +személyi bejárat viacolorral
- Kialakított kukatároló
- Külső biztonsági kamerák+ riasztó beszerelve
- Külső led világítótestek
- Utcai viacolor járda
Kulcsrakész ár: Bruttó 215 M Ft
Céges vásárlás esetén 27 % visszaigényelhető!!!
CSOK, KAMATTÁMOGATOTT HITEL, ÁFA és ILLETÉK VISSZAIGÉNYLÉSI LEHETŐSÉGGEL!
Igény szerint KIVÁLÓ ügyvédi kapcsolattal segítjük az ingatlan vásárlást. Továbbá profi és ingyenes, bank független hiteltanácsadással és ügyintézéssel (CSOK, babaváró, lakáshitel, stb…) állunk kedves Ügyfeleink rendelkezésére!
Információért, vagy az ingatlan megtekintéséhez, hívását hétvégén is fogadjuk!
VEVŐKÖRÜNKNEK FOLYAMATOSAN KERESÜNK ELADÓ - BÉRBEADÓ INGATLANOKAT! Ha Ön szeretné ingatlanát értékesíteni kérjük, keressen minket!
TOVÁBBI INGATLAN AJÁNLATAINKAT MEGTEKINTHETI A LŐRINCZ INGATLAN HONLAPJÁN!
Szerződéskötéshez kiváló ügyvédi hátteret és a munkadíjból jelentős kedvezményt nyújtunk!
Ingatlan adatok:
| Cím: | 2119 Pécel, Páskomliget lakópark |
|---|---|
| Alapterület: | 306 nm |
| Telek alapterület: | 500 nm |
| Ingatlan típusa: | Ikerház |
| Ingatlan állapota: | új építésű |
| Komfort: | duplakomfortos |
| Fűtési mód: | Egyéb |
| Kilátás: | panorámás |
| Terasz: | 15 nm |
| Emelet: | 3 |
| Szobák: | 5 db |
| Félszobák: | 0 db |
| Ár: | 118 000 000.- Ft |
| Külső hőszigetelés | |
|---|---|
| Csendes kertváros | |
| Lakóparki környezet | |
| Jó beosztású | |
| Amerikai konyha | |
| Terasz / Erkély | |
| Telefon | |
| Kábeltévé | |
| Internet |




